Müstakil ev, bahçeli ve iki park yeri olan, Детски град bölgesinde satılık
- 495,000€KDV'siz
2504€ / m².
- Adres: Sofya, Детски град bölgesi
- Emlak tipi: Ev
- Emlak no: 215
- Alan: 198
Tanım
AvaSOLIS Emlak & Yatırım müstakil bir ev sunmaktadır Pancharevo'daki „Detski Grad“ bölgesinde yer almaktadır.
Proje, kendi evinin rahatlığı ile organize bir ortamın konforu arasında bir denge düşünülerek tasarlanmış çağdaş bir yaşam çözümüdür. Pancharevo'daki „Detski Grad“ bölgesinde yer alan proje, yaklaşık 4700 m²'lik bir araziyi kaplamakta ve uyumlu ve düzenli bir alanda birleşen 13 modern tek ailelik ev - 6 müstakil ve 7 sıralı ev sunmaktadır.
Size sunduğumuz mülk parselin en batı kesimindeki iç araç yolunun sonunda yer alan müstakil bir evdir. Ev, güneybatı avlusu, 2 konut katı ve 2 araç için ayrılmış üst kat park yeri ile tasarlanmıştır.
Kat 1
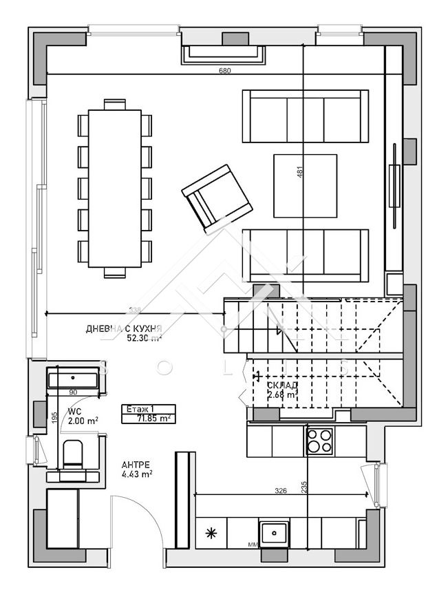
Hazır zeminden asma tavana kadar 2,94 m'lik net yüksekliğe sahip ilk konut katında (plakadan plakaya 3.20 m inşaat yüksekliği) antre, geniş bir oturma alanı (mutfak, yemek odası ve oturma odası), depolama odası ve tuvalet bulunmaktadır. İlk katın inşaat alanı 71,85 m²„dir. Tüm pencere sistemleri tavandan tabana uzanan “Fransız pencere" tipindedir. 363 m²'lik avluya çıkış, oturma odasının güneyinde doğrudan erişim ile yer almaktadır.
Ev sakinlerinin ek mahremiyeti için avlu alanına ikinci bir dış erişim de sağlanmıştır.
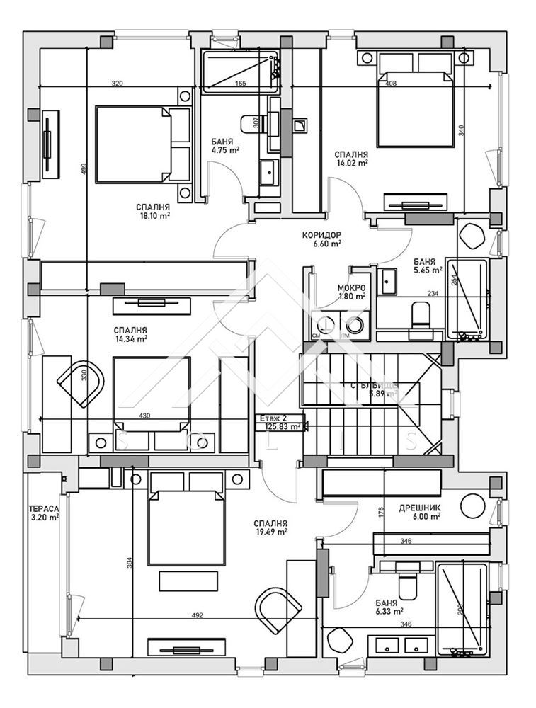
Kat 2
İç merdivenler evin ikinci katına çıkmaktadır. İkinci katta, hazır zeminden asma tavana kadar olan yükseklik 2,70 m'dir (plakadan plakaya 2,90 m inşaat yüksekliği) ve 4 yatak odası, giyinme odası, servis odası, teras ve 3 ayrı banyo bulunmaktadır. Bu kattaki inşaat alanı 125,83 m²„dir. Bu katta da tüm pencere sistemleri tavandan tabana uzanan “Fransız pencere" tipindedir.
Kompleksin konumu, büyük hipermarketler, alışveriş merkezi, anaokulları, okullar, ana yollar, turistik rotalar ve cazibe merkezleri, restoranlar, bankalar, hastaneler, spor ve eğlence merkezleri gibi birçok yakındaki olanağı sunmaktadır.
Yapı, iç mekanda maksimum özgürlük ve işlevsellik için tasarlanmış betonarme olup, cepheler yüksek kaliteli malzemelerle ısı yalıtımlı olup, her mevsim enerji verimliliği ve konfor sağlamaktadır. Düz çatılar, iç drenaj sistemi ve XPS ısı yalıtımı ile tamamlanmıştır ve alüminyum pencere sistemleri dağ manzaralı maksimum doğal aydınlatma ve havalandırma sağlamaktadır. Renk paleti dengeli doğal tonlara sahiptir ve düzen, uyum ve huzur hissi verir. Her ev, modern sıhhi ve yangın güvenliği gereksinimlerine ve erişilebilir çevre ilkelerine uygun olarak, rahat erişim ve güvenli iç ve dış alanlarla tasarlanmıştır.
Temel özellikler
- Yatak odası (adet): 4
- Odalar: 5
- İnşaat türü: Tuğla
- Mobilya: Eşyasız
Mülkün konumu
Sıkça Sorulan Sorular
Komisyon ne kadar?
Ek ücret veya vergi var mı?
Bu mülk için ipotek kredisi alabilir miyim?
Yabancı alıcılar bu mülkü satın alabilir mi?
Benzer mülkler
Sıra ev, mahremiyet ve doğayla bağlantı hissini modern şehir yaşamının tüm avantajlarıyla birleştiren,
- 395.000€/KDV hariç
İnşaat türü: Tuğla
Odalar: 4
185 m²
Bana ulaşın










