Sıra ev, mahremiyet ve doğayla bağlantı hissini modern şehir yaşamının tüm avantajlarıyla birleştiren,
- 395,000€KDV'siz
2135€ / m².
- Adres: Sofya, Детски град bölgesi
- Emlak tipi: Ev
- Emlak no: 216
- Alan: 185
Tanım
AvaSOLIS Emlak & Yatırım предлагает рядный дом, расположенный в местности „Детски град“ в Панчарево. Дом расположен в самой южной и солнечной части участка. Он спроектирован с юго-западным двором, 2 надземными жилыми этажами и выделенными надземными парковочными местами на 2 автомобиля. Недвижимость обеспечивает оптимальное использование пространства с просторной гостиной на первом уровне и тремя комфортабельными спальнями на втором, дополненными ванными комнатами и гардеробными, чтобы удовлетворить семейные потребности в уюте и функциональности в одном.
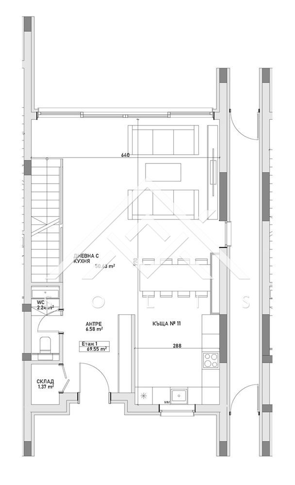
Kat 1
На первом надземном уровне с высотой потолка от готового пола до подвесного потолка 2,94 м (строительная высота от плиты до плиты 3,20 м) расположены прихожая, просторная гостиная с гостиной, столовой и кухней, кладовая и санузел. Застроенная площадь первого уровня составляет 69,55 м². Все оконные системы — французские окна, занимающие пространство от пола до потолка. Выход во двор площадью 235 м² расположен с западной стороны перед гостиной с прямым выходом через оконную конструкцию „подъемно-сдвижная“.
Для дополнительного уединения жильцов дома предусмотрен второй внешний доступ к дворовому пространству через проход, параллельный дому.
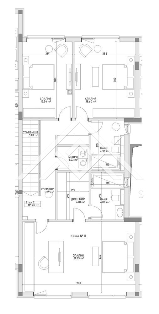
Kat 2
Внутренняя лестница ведет на второй уровень дома. На втором уровне высота между уровнем готового пола и подвесного потолка составляет 2,70 м (строительная высота от плиты до плиты 2,90 м), и здесь расположены 3 спальни, гардеробная, служебное помещение и 2 отдельные ванные комнаты с санузлом. Застроенная площадь этого уровня составляет 115,65 м². На этом уровне все оконные системы также являются французскими окнами, занимающими пространство от пола до потолка.
Yapı, iç mekanda maksimum özgürlük ve işlevsellik için tasarlanmış betonarme olup, cepheler yüksek kaliteli malzemelerle ısı yalıtımlı olup, her mevsim enerji verimliliği ve konfor sağlamaktadır. Düz çatılar, iç drenaj sistemi ve XPS ısı yalıtımı ile tamamlanmıştır ve alüminyum pencere sistemleri dağ manzaralı maksimum doğal aydınlatma ve havalandırma sağlamaktadır. Renk paleti dengeli doğal tonlara sahiptir ve düzen, uyum ve huzur hissi verir. Her ev, modern sıhhi ve yangın güvenliği gereksinimlerine ve erişilebilir çevre ilkelerine uygun olarak, rahat erişim ve güvenli iç ve dış alanlarla tasarlanmıştır.
Комплекс располагает необходимым количеством парковочных мест для автомобилей и велосипедов. Внутренняя организация пространства гарантирует спокойствие и безопасность для жильцов, а ориентация жилых помещений учитывает солнечный свет и климатические условия, что создает благоприятную атмосферу для жизни. Зеленые насаждения занимают более 70% территории, создавая приятную среду для отдыха и рекреации.
Temel özellikler
- Yapım yılı: 2027
- Yatak odası (adet): 3
- Odalar: 4
- İnşaat türü: Tuğla
- Mobilya: Eşyasız
Mülkün konumu
Sıkça Sorulan Sorular
Komisyon ne kadar?
Ek ücret veya vergi var mı?
Bu mülk için ipotek kredisi alabilir miyim?
Yabancı alıcılar bu mülkü satın alabilir mi?
Benzer mülkler
Müstakil ev, bahçeli ve iki park yeri olan, Детски град bölgesinde satılık
- 495.000€/KDV hariç
İnşaat türü: Tuğla
Odalar: 5
198 m²
Bana ulaşın










